
★
|
您的位置:
山東技校網 >> 精選題庫 >> 技能大賽電焊工技能考核試卷


|
材 料 |
規格mm |
數量(每人) |
加工要求 |
備注 |
|
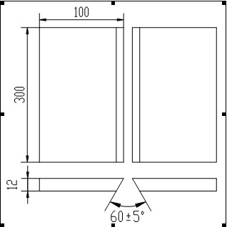
20鋼板 |
300×100×12 |
2塊 |
如圖1 |
|
|
20鋼管 |
φ60×5×100 |
2只 |
如圖2 |
|
|
角 鋼 |
不限 |
|
|
|
|
焊條E5015 |
φ3.2,φ4 |
|
|
|
|
焊絲H08Mn2SiA |
φ2 |
|
|
|
|
鈰鎢極 |
φ2.5 |
|
|
|
|
焊接設備:WS-400手工鎢極氬弧焊機,ZX7-400手工電弧焊機 | ||||
|
氬氣 | ||||



相關閱讀 >>
技校網首頁 | 關于技校網 | 技校網廣告服務 | 技校網匯款信息 | 技校網會員服務 | 技校網免責聲明 | 學校列表
濟南 青島 泰安 日照 煙臺 淄博 棗莊 德州 臨沂 聊城 菏澤 濰坊 濟寧 東營 濱州 萊蕪 威海
CopyRight 2006-2017 All rights reserved 版權所有 山東技校網 未經允許 不得復制或鏡像
公安備案號 13024002000224
ICP經營許可證號 冀B2-20170024
網站備案號 冀ICP備11020808號-9